徐經理18936085105

成功案例
廚余垃圾處理,蘇州市吳中區東山鎮廚余垃圾處理設備500kg每天





韓博廚余垃圾處理設備一體機-CFCZ-CY500

韓博廚余垃圾處理設備一體機-CFCZ-CY500設備參數
產品名稱 | 處理方式 | 生化降解處理 | |||
產品型號 | CFCZ-CY500 | 生產日期 | 2017年 | ||
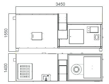
產品基本技術參數 | 額定電壓 | 380V/50HZ | 產品基本技術參數 | 整機尺寸(mm) | 一體機 3450X1405X1550 提升機 730X880X1245 氣體凈化 500X500X1080 |
日處理量 | 500kg | 包裝方式 | 木箱運輸 | ||
粉碎電機功率 | 1.5KW | 攪拌電機功率 | 3KW | ||
絞籠電機功率 | 0.75KW | 油加熱功率 | 3KW | ||
加熱功率 | 8.8KW | 提升機功率 | 1.1KW | ||
風扇功率 | 50W | 銘牌 | 韓博 | ||
處理方式 | 生化降解、減量、減容 | 排風方式 | 循環排風 | ||
運行噪音 | ≤65dB | 廢棄排放 | 無廢棄物排放 | ||
處理周期 | 24H | 控制方式 | PLC全自動控制+回路按鈕控制 | ||
機身材質 | 機身全不銹鋼 | 粉碎方式 | 研磨粉碎 | ||
產品簡介 | 人工分揀、破碎、生化處理、,氣體凈化,處理設備由進出料口、反應器、攪拌器、加熱器、通風和廢氣處理裝置組成,并具有保溫、自動運行和運行狀況顯示功能。處理設備設計使用壽命應≥10年,處理設備密閉,不會出現滲漏現象,通風量可調節,經廢氣處理裝置處理后達標排出。 攪拌器主電機有過載保護裝置,運行模式可調節,并具有手動、自動操作和出料功能。運行情況顯示屏可顯示溫度、攪拌器和通風裝置的工作狀態等。PLC控制、顯示屏顯示機器工作狀態。設備含有監控探頭和數據傳輸功能,可對每天處理的垃圾量進行實時監控和跟蹤匯報,并和市局城管局系統進行對接。 | ||||
500KG廚余垃圾處理設備設計圖


韓博廚余垃圾處理設備室內空氣凈化器(配套設備)

韓博廚余垃圾處理設備氣體凈化器(配套設備)

韓博廚余垃圾處理設備提升機(配套設備)

500KG廚余垃圾處理設備設計說明
一、廚余垃圾處理設備-工程概況
本項目為廚余垃圾就地處理項目,為了給周邊提供一個好的生活環境,保證人民群眾的身體健康,對周邊產生的餐廚垃圾進行處理,使之產生更大的環境效益、社會效益、經濟效益,工程
建設規模為500kg/d.
二、廚余垃圾處理設備-處理規模
餐廚垃圾處理能力:為500kg/d,日產有機肥100kg/d。
三、廚余垃圾處理設備-設計要求
1、噪音符合《工業企業廠界噪音標準》(GB12348-90)。
2、廠界臭氣符合《惡臭污染物排放標準》(GB14554-93)規范。
3、有機肥達到《生物有機肥》(NY884-2004)標準。
四、設計規范、標準
1、《生活垃圾堆肥處理技術規范》(CJJ/T52-1993);
2、《餐廚垃圾處理技術規范》(CJJ184-2012);
3、《工業企業設計衛生標準》(TJ 36-79);
4、《惡臭污染物排放標準》(GB 14554-93);
5、《環境空氣質量標準》(GB 3095-1996);
6、《通風與空調工程施工質量驗收規范》(GB50243-2002);
7、《采暖通風與空氣調節設計規范》(GB50243-2002);
8、《給水排水管道工程施工及驗收規范》(GB50268-97);
五、工藝流程圖及說明
1、工藝流程
參見工藝圖紙
2、工藝說明
餐廚垃圾、菜場果蔬垃圾和蔬菜基地果蔬垃圾分別經由專用密閉運輸車輛輸送至處理站,直接卸入卸料/分揀平臺,經人工分選將其中的塑料和紙質包裝類垃圾以及少量玻璃瓶、金屬物料、磚瓦等無機物料分選出來后,進入破碎機破碎至1-3cm一下,然后進入螺旋擠壓脫水機進行脫水處理,脫除下來的滲濾液進入油水分離,經過處理排入污水管道。
擠壓產生的含固率在40%以上的干物料經由皮帶輸送機送入高溫好氧發酵倉內進行高溫好氧發酵處理。物料在高溫好氧發酵倉內,通過強制通風與內部攪拌翻堆相結合的方式,保證氧氣充分供給,以使物料中的揮發性有機質降解效率達到70%以上,確保處理后產物充分腐熟,以使物料中的寄生蟲(卵)、病原菌,病毒等充分滅活,高溫好氧發酵倉出料經由出料口排出。
高溫好氧發酵倉內產生的高濕、高溫和高污染惡臭氣體,排入氣體凈化箱進行凈化。
六、廚余垃圾處理設備安裝
廚余垃圾處理設備的安裝和調試要遵照國家的相關規范和設備隨機說明的要求進行,并且在
專業人員的指導下完成。
500kg廚余垃圾處理設備-設備一覽表
參見工藝圖紙
韓博500kg廚余垃圾處理設備流程圖
參見工藝圖紙
韓博500kg廚余垃圾處理設備平面安裝圖
參見工藝圖紙
韓博科技餐廚垃圾處理設備-售中、售后服務承諾
一、質保期服務:
免費質保1年。維護期內公司提供現場服務;響應時間為:7*24h(無論工作日與否,24小時待命),根據可能的突發事件和危害程度,制定相關的緊急預案,并成立應急處理領導小組幫助用戶解決緊急事件。在產品質保期內,一旦發生質量問題,供應商保證在接到通知工作日的12小時內到現場進行維修、更換或退貨,費用(含零配件)由供應商負責,如供應商在接到通知工作日的24小時內沒有答復或處理問題,則視為供應商承認質量問題并承擔由此而發生的一切費用。質保期內產品的一切質量問題,更換部件及產品本身質量原因造成的所有經濟損失應全部由供應商自行負責。供應商應提供免費上門服務,以及貨物生產廠家承諾提供高于此標準或其它額外另行附加的售后服務內容。項目驗收合格后三個月內,成交供應商需派技術人員在現場監測系統運行,并提供設備運行管理制度。
二、質保期外的維保服務:
為了滿足用戶要求,使設備更好的運行,在設備保修期滿后,對機組出現的問題及時有償提供配件并到現場進行更換,以成本價為買方提供維修服務,同時為用戶提供長期的成本價保養服務(需另外簽定機組保養合同)。包括運行期間固定次數的巡檢,開機前及關機后的檢查、清洗等,此項工作有助于減少運行損耗,保持機組良好的技術性能,良好的運行狀態,延長機組的使用壽命。超過質保期后,在5年內以相當于出廠成本的價格為用戶提供維修保養服務,終身為用戶提供持續完善的售后服務。
三、移交及免費培訓服務:
我公司免費試營10天,試運營期間對貴方免費培訓不少于2人的技術人員和操作維修人員,培訓為現場培訓,相關設備使用人員進行一對一的培訓,應能達到熟練操作并了解設備結構、工作原理及特性,排除一般故障的水平。在我公司工程技術人員進行巡檢期間,也可以隨時隨地對使用人員進行示范。
四、日常維護及保養方案
1)殘渣排除后,應讓設備繼續轉動約1分鐘左右,持續的水流會讓垃圾處理器內部和管道沖洗干凈。
2)每次使用后,應將機器外殼清洗干凈并去除外部殘留污漬。
3)絞籠清洗(如有):正常情況機器自動清洗,如遇異常,可揭開上蓋取出絞籠進行清洗。
4)避免將高于40℃的物料及液體直接倒入垃圾處理器,此操作易導致機器內部橡膠件老化及損壞。
5)長時間不使用本機器,應拔掉電源。
6)長期使用要把機器內部清洗干凈,生化處理箱內的料全部排出來,油水分離污水排放干凈,氣體凈化液體排放干凈
六、運輸和交貨期
1.服務日期:合同規定時間內安裝調試完成
2.交貨地點:采購單位指定地點
3.交貨方式:最終實施合同應在服務前向采購方提供交貨計劃
4.運輸方式:貨車托運
七、驗收標準
一:外觀標準
1.鋼板表面不能有銹斑,尺寸符合圖紙要求
2.設備管口尺寸符合設計要求
3.表面貼紙數量,內容正確
二:結構標準
1.機器內部不能有漏水
2.機器不漏電,要具有漏電和過熱保護
3.機器攪拌沒有剮蹭聲音
4.具有粉碎,固液分離,生化處理,油水分離,氣體凈化功能
三:安裝要求:
安裝前應具備下列技術資料:
1 機器的出廠合格證明書;
2 制造廠提供的有關重要零件和部件的制造、裝配等質量檢驗證書及機器的試運轉記錄;
3 機器與設備安裝平面布置圖、安裝圖、基礎圖、中裝配圖、主要零件圖、易損零件圖及安裝使用說明書等;
4 機器的裝箱清單;
5 有關的安裝規范及安裝技術要求或方案。
四:試運行及驗收
我方負責派專門的技術人員到現場免費進行安裝和調試,直到驗收合格為止。同時我方在貨物運抵現場一周前,向買方提供安裝調試及運行的進度協商。在設備抵達采購人指定地點并進行完到貨檢驗后,我公司承諾以下內容:
1 指派專業技術人員在現場進行安裝
2 安裝完畢后按照驗收標準對設備進行10天時間的試運行。

手機:徐經理18936085105/王經理18013113750/顧經理18112779166
電話:徐經理18936085105
傳真:0512-66583571
郵箱:hanbok@foxmail.com
地 址:蘇州市吳中區臨湖鎮許家港路298號
韓博科技專業生產廚余垃圾處理器,餐廚垃圾處理器,食物垃圾處理器,歡迎來廠參觀!同時提供有機垃圾處理設備新聞,餐廚垃圾處理設備成功案例及技術!
站長QQ:1294562135網站地圖